Kleines Bad altersgerecht umbauen: Empfehlungen & praktische Tipps
Menschen im hohen Alter benötigen oftmals etwas mehr Bewegungsfreiheit im Badezimmer. Das kann speziell bei wenig verfügbarem Raum eine besondere Herausforderung darstellen, die man nur mit einer cleveren Planung lösen kann. Wir zeigen Ihnen, wie Sie dennoch ein altersgerechtes Bad auf 5 bis 6 Quadratmeter schaffen können – ganz ohne Abstriche bei Komfort & Sicherheit.

Badsanierung Anfrage




Das Wichtigste in Kürze
- Herausforderung kleines Bad: Da Senioren häufig Schwierigkeiten bei der Mobilität haben, sollten altersgerechte Badezimmer möglichst groß sein. Doch auch im kleinen Bad mit 5 bis 6 qm lassen sich viele Maßnahmen sinnvoll umsetzen – unser Ratgeber hilft weiter!
- Planungsempfehlungen: Es gibt keine gesetzlichen Normen oder Vorgaben für ein altersgerechtes Bad. Sie können aber der DIN-Norm 18040-2 für barrierefreies Bauen (teilweise) folgen. Eine gute Planung sollte die Anforderungen und den verfügbaren Platz berücksichtigen.
- Sinnvolle Maßnahmen: Achten Sie auf breite Eingänge und eine unverbaute Raummitte, um hohe Bewegungsfreiheit (mit Gehhilfe) zu gewährleisten. Ein großer Duschplatz, ein erhöhtes Wand-WC und ein Waschbecken mit extra Haltegriffen erhöhen die Sicherheit im Bad.
- Grundrissbeispiele: Wir geben Ihnen zwei typische Beispiele mit 5 bis 6 Quadratmetern zur Hand. Nutzen Sie unseren Online-Badplaner, um Ihr eigenes seniorengerechtes Traumbad zu entwerfen – das Tool ist einfach zu bedienen und bietet viele Möglichkeiten.
- Tipps zu Kosten & Ersparnissen: Ein kompletter Badumbau kostet in der Regel ein wenig mehr als eine ‚normale‘ Badsanierung. Doch es gibt auch einige einfache und günstige Maßnahmen sowie mögliche Förderprogramme, zu denen wir Sie gerne informieren.
Gibt es gesetzliche Vorgaben oder Orientierungshilfen?
Ein wichtiger Hinweis vorab: Der Begriff „altersgerechtes Bad“ ist nicht definiert. In der DIN-Norm 18040-2 finden sich jedoch verbindliche Vorgaben für ein barrierefreies Bad sowie ein rollstuhlgerechtes Bad. Das bedeutet, Sie haben beim Umbau Ihres Badezimmers ein wenig Freiheit, welche Maßnahmen Sie als sinnvoll und machbar erachten und worauf Sie vielleicht verzichten können.
Hier sind die wichtigsten Anforderungen von DIN 18040-2 auf einen Blick zusammengefasst:
| Barrierefreies Bad | Rollstuhlgerechtes Bad | |
| Eingänge | Min. 80 cm breit | Min. 90 cm breit |
| Bewegungsfläche vor Dusche, Waschplatz und WC (können sich überschneiden) | Min. 120 × 120 cm | Min. 150 × 150 cm |
| Duschplatzfläche | Min. 120 × 120 cm | Min. 150 × 150 cm |
| WC Montagehöhe | 46 bis 48 cm | 46 bis 48 cm |
| Waschplatz Montagehöhe | 80 cm (unterfahrbar) | 80 cm (unterfahrbar) |
In den folgenden Abschnitten gehen wir noch auf die weiteren Anforderungen detailliert ein und erklären Ihnen, welche Vorgaben auf wenig Raum sinnvoll umgesetzt werden können.
Unsere Empfehlung: In einem kleinen Bad müssen Sie gewisse Kompromisse eingehen. So gilt zwar für ein barrierefreies Bad eine Mindestgröße von rund 6 qm, doch in der Realität sollten es eher 8 qm sein (insbesondere für Rollstuhlfahrer). Ein altersgerechtes Bad mit den wichtigsten Maßnahmen ist hingegen auch auf 5 bis 6 qm gut umsetzbar – folgen Sie dazu einfach unserem Ratgeber im folgenden Abschnitt!
Badezimmer Raumkonfigurator
Altersgerechtes Bad für Senioren – darauf sollten Sie achten
Zu den oben genannten Anforderungen kommen natürlich noch viele weitere Kriterien hinzu. Nutzen Sie die Empfehlungen aus DIN 18040-2, um ein kleines Bad barrierefrei zu gestalten. Alle Vorgaben dienen im seniorengerechten Badezimmer lediglich als Empfehlung, Sie haben also viel Spielraum.
Eingänge mindestens 80 oder 90 cm breit

Es gilt eine Eingangsbreite von mindestens 80 cm, doch wir empfehlen, gleich zu einer 90 cm breiten Tür zu greifen. So können Senioren mit Gehhilfe oder Rollator bequem ins Badezimmer gelangen. Eine nach außen öffnende Tür spart weiteren Platz und kann bei Unfällen ein wahrer Lebensretter sein, da sie nicht von innen blockiert werden kann. Eingänge zur Dusche sollten ebenfalls 90 cm breit sein.
Unverbaute Bewegungsfläche im Zentrum

Beim Badumbau sollten Sie auch unbedingt auf möglichst freie, unverbaute Bewegungsflächen achten. Das gibt Senioren ausreichend Platz, um mit einer Gehhilfe bequem durchs Badezimmer navigieren zu können. DIN 18040-2 macht hier zwar verbindliche Vorgaben, doch auf wenig Raum sind diese nur schwer umzusetzen. Achten Sie stattdessen darauf, Barrieren in der Raummitte zu vermeiden.
Begehbare Walk-in-Dusche mit Haltegriffen und Sitz

Eine altersgerechte Dusche sollte auf jeden Fall bodengleich sein und einen einfachen Zugang bieten. Wir empfehlen hier eine begehbare Walk-in-Dusche ohne Tür, da diese nicht nur schick aussieht, sondern selbst von Senioren mit Einschränkungen gut nutzbar ist. Haltegriffe, Klappstuhl und Temperaturbegrenzer sorgen beim Duschen für mehr Komfort und Sicherheit.
Erhöhtes Wand-WC mit extra Haltegriffen

Die normale WC-Höhe liegt zwischen 40 und 43 cm, doch für Senioren ist ein erhöhtes Wand-WC die optimale Lösung. Eine Einbauhöhe von 45 bis 50 cm erleichtert das Hinsetzen und Aufstehen, zudem kann das langfristig die Gelenke schonen. Zusätzliche Haltegriffe erhöhen dabei die Sicherheit. Beim Einsatz eines Rollstuhls müssen Sie jedoch ein verlängertes WC-Modell in Betracht ziehen.
Normales Waschbecken mit optionalen Haltegriffen

Bei der Gestaltung eines altersgerechten Badezimmers gibt es beim Waschbecken wahrscheinlich den meisten Spielraum. Die DIN-Norm gibt zwar ein unterfahrbares Waschbecken in 80 cm Höhe vor, doch das ist nur für Menschen im Rollstuhl notwendig. Sollte das bei Ihnen nicht der Fall sein, reichen optionale Haltegriffe an einem normalen (vorhandenen) Waschtisch meistens aus.
Optionale Badewanne mit einfachem Einstieg

Wenn Sie auf eine Badewanne nicht verzichten möchten, empfiehlt sich ein seniorengerechtes Modell mit Tür für einen einfachen Einstieg. Diese Varianten kosten zwar deutlich mehr, sind aber für eine sichere Nutzung essenziell (die meisten Unfälle passieren beim Ein- oder Ausstieg in die Badewanne!). Ein Badewannenlift kann sogar beim Hinsetzen und Aufstehen behilflich sein.
Praktische Beispiele für einen Umbau inklusive Grundriss
Doch lassen sich diese Empfehlungen eigentlich auch in einem kleinen Bad von 5 oder 6 qm umsetzen? Wir sagen: Ja! Fangen Sie beim Grundriss an und entscheiden Sie dann mit Hinblick auf Ihre persönliche Situation. Ein altersgerechtes Bad muss nicht zwingend alle Vorgaben erfüllen.
Mit unserem praktischen und kostenlosen Online-Badplaner können Sie innerhalb weniger Minuten einen detailgetreuen Grundriss erstellen. Halten Sie sich dabei an die folgenden Schritte:
- Vermessen Sie den verfügbaren Raum in Ihrem Bad
- Folgen Sie den Schritten des Online-Badplaners
- Betrachten Sie Ihren Entwurf in der 3D-Ansicht
- Nehmen Sie bei Bedarf weitere Änderungen vor
Nachfolgend zwei praktische Beispiele, die wir mit unserem Online-Badplaner erstellt haben. Lassen Sie sich davon inspirieren oder erstellen Sie Ihr eigenes, seniorengerechtes Traumbad.
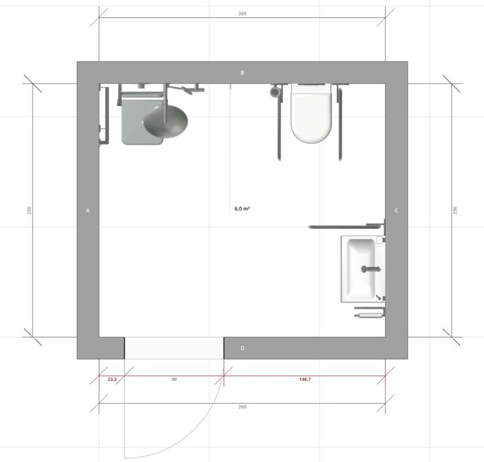
Kleines Bad mit 6 qm
Ein rechteckiger Raum ist für die meisten Badezimmer typisch. Mit einer cleveren Planung lassen sich alle Sanitärobjekte gut verteilen, während die Raummitte möglichst frei bleibt. Eine wichtige Entscheidung sollte sein, ob eine Duschwand notwendig ist oder nicht. Sie kostet zwar Platz in der Mitte, kann aber das Spritzwasser im WC-Bereich reduzieren.
Alles Wichtige auf einen Blick:
Breite Eingangstür mit 90 cm, die nach außen öffnet.
Viel Bewegungsfreiheit am Eingang und in der Raummitte.
Normale Walk-in-Dusche mit Klappsitz (und optionaler Duschwand).
Einklappbare Haltegriffe am Waschbecken, WC und in der Dusche.
Erhöhtes Wand-WC mit hohem Komfort für Senioren.

Schlauchbad mit 5,5 qm
In einem kleinen Schlauchbad ist die wichtigste Regel, den Durchgang möglichst freizuhalten. Die Dusche muss zwangsläufig am hinteren Ende der Wand positioniert werden, während alle weiteren Sanitärobjekte an einer Seite angeordnet sind. Vermeiden Sie dabei, die Gegenwand mit Objekten oder Schränken zuzustellen, um die Bewegungsfreiheit nicht einzuschränken.
Alles Wichtige auf einen Blick:
Breite Eingangstür mit 90 cm, die nach innen öffnet.
Alle Sanitärobjekte an einer Seite für einen freien Durchgang.
Bodenebene Walk-in-Dusche ohne Tür und Duschwand für einfachen Zugang.
Einklappbare Haltegriffe am Waschbecken, WC und in der Dusche.
Erhöhtes Wand-WC mit hohem Komfort für Senioren.

Kosten: Tipps für einen schnellen und günstigen Badumbau
Eine Badsanierung kann immer mit höheren Kosten verbunden sein, vor allem wenn es altersgerecht sein soll. Doch es gibt einige günstige Maßnahmen, die teilweise auch nachträglich möglich sind. Es muss also nicht immer gleich ein ganzer Badumbau sein.
Günstige Umbaumaßnahmen für das altersgerechte Bad
Einklappbare Haltegriffe am Waschbecken, WC und in der Dusche.
Installieren Sie im bestehenden Badezimmer Haltegriffe und einen Klappsitz. Alternativ geht auch ein Duschhocker. Das ist oftmals für wenige hundert Euro machbar.
Wenn Sie bereits ein Wand-WC haben, können Sie ggf. die Höhe anpassen, ohne ein neues Modell kaufen zu müssen. Informieren Sie sich, ob das bei Ihrer Toilette möglich ist.
Alternativ können Sie einen erhöhten Toilettensitz installieren, der die Sitzhöhe um ein paar Zentimeter anhebt. Das ist noch günstiger als der Umbau der Toilette.
Bauen Sie weitere Barrieren ab, so zum Beispiel tiefe Wandschränke, die viel Platz im Bad einnehmen können. Ersetzen Sie diese durch flachere Modelle.
Sorgen Sie durch den Einsatz von Farben und Kontrasten für bessere Sichtbarkeit im Bad. Das hilft vor allem Menschen, die im hohen Alter unter einer Sehschwäche leiden.


Umfangreiche Umbaumaßnahmen für maximale Barrierefreiheit
Falls Sie hingegen eine komplette Sanierung Ihres alten Badezimmers planen, kann das auch die perfekte Gelegenheit für maximale Barrierefreiheit sein. Ihnen stehen dabei idealerweise mindestens 5 bis 6 qm zur Verfügung – die zusätzlichen Kosten bleiben dann eigentlich überschaubar.
Zunächst ein kurzer Überblick zu den typischen Kosten einer Badsanierung:
| Standard 6 qm | Premium 6 qm | Luxus 6 qm |
| Einfache Ausstattung mit 120 x 120 Duschkabine sowie günstigen Sanitäranlagen und Armaturen | Moderne 120 x 120 Walk-in-Dusche, schicke Oberflächen aus Mikrozement und Marken-Anlagen samt Armaturen | 120 x 120 cm offene Walk-in-Dusche ohne Duschwand, bearbeiteter & rutschfester Marmor, Designer-Anlagen |
| ab 27.000 € | ab 29.000 € | ab 31.500 € |
Hinzu kommen dann noch altersgerechte Umbaumaßnahmen:
300 bis 500 Euro für spezielle Armaturen mit Temperaturbegrenzer (Thermostat)
300 bis 500 Euro für zusätzliche Stütz- und Haltegriffe an den Sanitäranlagen
100 bis 300 Euro für Zubehör wie Antirutschmatten und Duschhocker
Die tatsächlichen Mehrkosten betragen also in vielen Fällen lediglich 1.000 bis 2.000 Euro, je nachdem, welchen Anforderungen Sie am Ende folgen möchten.
Förderprogramme des Staates unbedingt berücksichtigen
Wenn Sie sich beim Badumbau an die Vorgaben zum barrierefreien Bauen halten, könnten Sie auch von verschiedenen Förderprogrammen profitieren. Zu den wichtigsten Förderungen gehören unter anderem Zuschüsse der staatlichen KfW-Bank sowie Zuschüsse der Pflege- und Krankenkassen. Informieren Sie sich dazu vorab oder lassen Sie sich von unseren Experten zu Ihren Möglichkeiten beraten.

Ein altersgerechtes Bad ist auch auf wenig Raum möglich
Senioren benötigen eigentlich viel Platz, um im Bad problemlos navigieren zu können. Doch dank guter Planung schaffen Sie selbst auf 5 bis 6 Quadratmetern ein altersgerechtes Badezimmer, ohne Abstriche bei Komfort und Sicherheit machen zu müssen. Achten Sie auf breite Eingänge, viel freien Raum in der Mitte sowie praktische Haltegriffe an allen Sanitäranlagen und einen Hocker in der Dusche.
Haben Sie noch weitere Fragen zu diesem wichtigen Thema oder suchen Sie nach einem zuverlässigen Partner für Ihren altersgerechten Badumbau?
Dann kontaktieren Sie uns gerne telefonisch unter der Nummer:
oder nutzen Sie unser Kontaktformular. Wir freuen uns auf Ihre Anfrage!

